中文en

Arts Gallery in Civic Park

This arts gallery is located in the planned Daihe Civic Park, which is an urban green landscape band unfolding along Daihe River, occupying ca. 112 hectares. The whole park has a basic tone of natural landscape with allocations of small facilities for resting. The starting point of the design was integration of the natural and the man-made.   

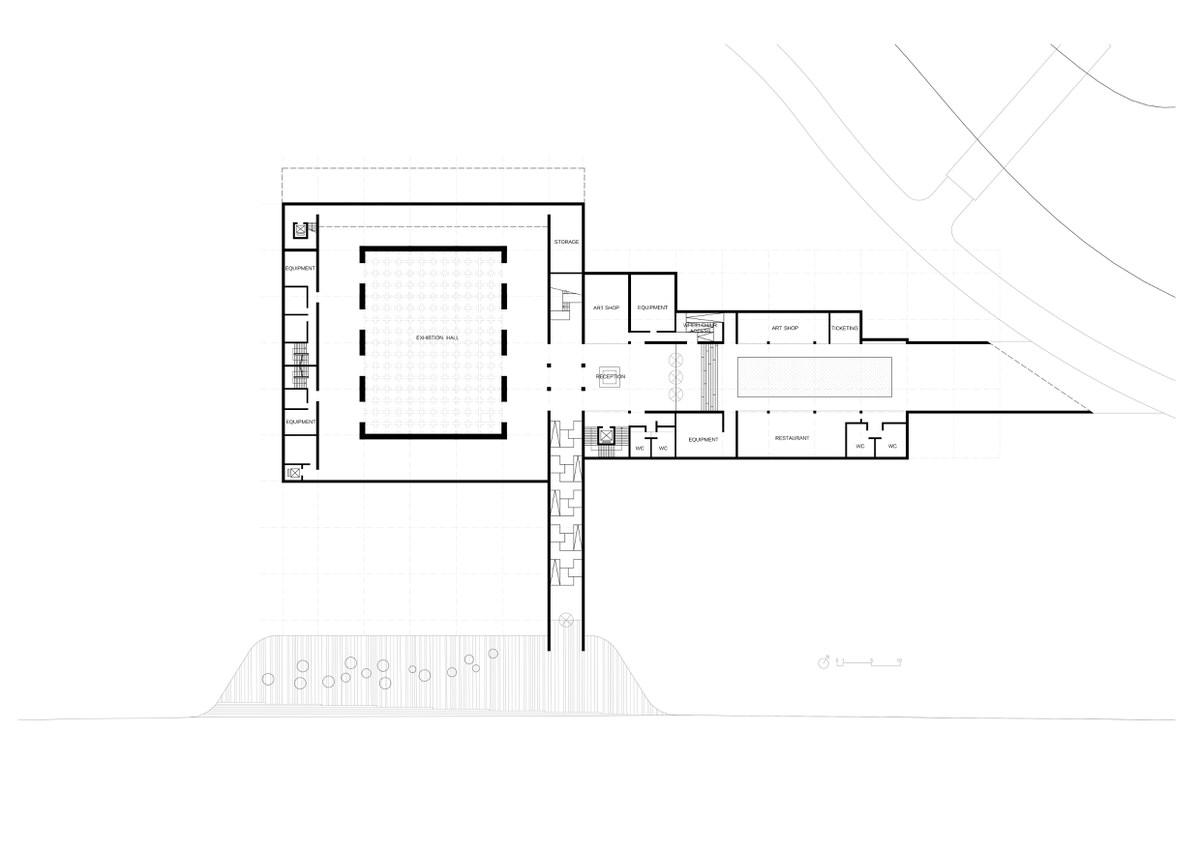
The arts gallery located in the middle of the park is the largest building. The earthwork of river widening has been made into hills hiding the arts gallery, so that the impact of a huge building volume on natural environment was tremendously weakened.    

The hills lie between Daihe River and the city while the arts gallery is interwoven into the topography. On southern side an access facing the city is arranged, whose vertical form is a natural signal, welcoming visitors in its concise way. On norther side, there is a roof gallery on top of the hill, from where visitor will enjoy the beautiful view of Daihe River. On eastern side, the courtyards hidden behind the terrain elevation form a path from river bank to arts gallery. In courtyards, arts experience projects will be displayed. Like small gardens in arts gallery, these courtyards not only eliminated the elevation difference between the river and entrance hall of the arts gallery, but also harmoniously transited different spaces with various atmosphere. Storehouse is located on ground floor with the exhibition hall above it. The whole building is made of concrete. Since the central exhibition hall is buried under the earthwork, it is equipped with skylight for natural lighting.     

Integrated into its surroundings, the building largely weakens its impact on natural environment, whereas in some parts the man-made beauty is clearly and proudly presented, so that visitors could experience the relationship of the natural and the man-made both from interior and exterior spaces. 

  • Location:China, Hebei
  • Area:4,350 sqm
  • Year:2017
  • Client:Daihe City Government
  • Architect:xup Architekten
  • Team:Shan Xu, Zhihu Pan, Jing Xue, Xinxin Ji
  • Type:architectural design, landscape design