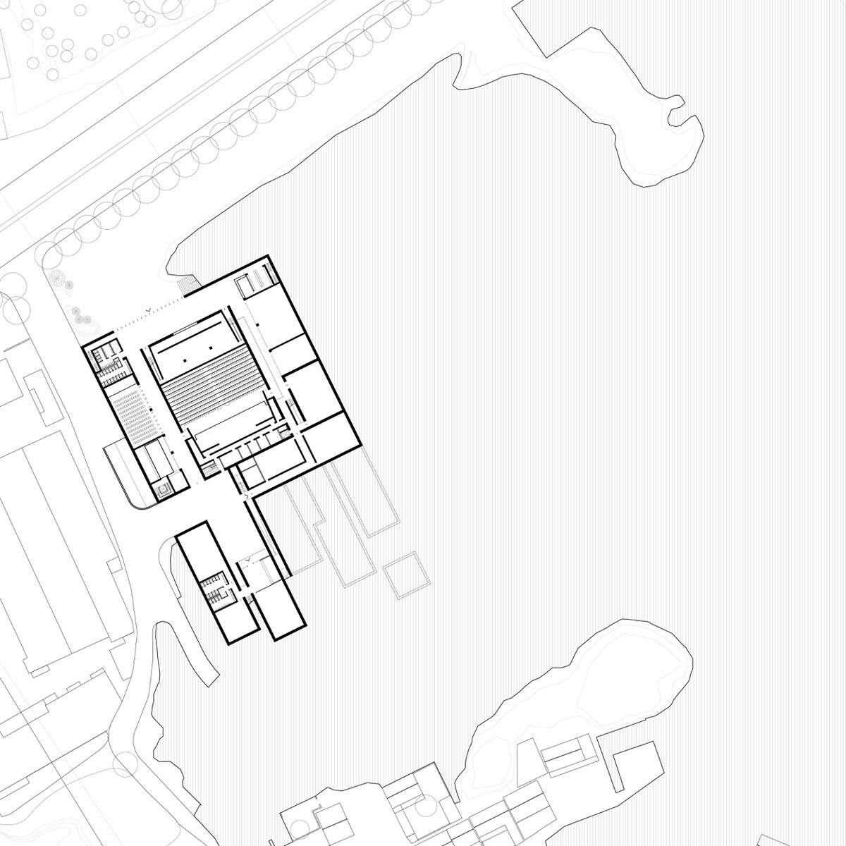
The Ninghai government plans to relocate an existing adult education center to a plot opposite the town hall of Ninghai. This plot has a total area of 3.45 Ha, characterized by its terraced topography. The government aims to diversify its community activities by incorporating vocational skills training and youth education. In addition to this, their goal is to establish a multi-functional conference hall for cultural events, a small stadium, as well as offices and utility rooms.
The Client would like to maintain and accentuate the natural landscape of the site. As such, the key objective of the proposal is to create a public town park, with the buildings being arranged more densely towards the southwest side. The massing is divided into differently sized blocks according to the various internal uses. These blocks orient to the terraced topography of the site with platforms and ramps, which are not only used as pedestrian access, but also form a stimulating sequence of public outdoor spaces.
The buildings blend into the terracing of the site, creating an open and all-inclusive cultural and sports center, while the landscape of the park is retained and enhanced with the new layout of paths and additional planting. Altogether, this generates a new balanced eco-system that interacts with and forms a dialogue with the buildings.